AMMAN CENTRAL THEATRE

A NEW DIRECTION FOR ORNAMENT

 

Amman Central Theatre

A New Direction for Ornament

 

This project proposes a theatre that sits on top of an existing building in Downtown Amman, Jordan. The architectural investigation was triggered through a fascination with the role of Ornament in a twenty-first century Middle-Eastern Society. Identifying current issues with navigation and way-finding in Amman, the project offers an alternative to traditional way-finding systems through a component-based logic that uses a geometry that tessellates between the scale of the building and the ornamental. The geometry was designed to give directions both at the scale of the city and at the scale of the pedestrian.

website-north-facade.jpg

Street Level View of the Theatre from opposite street showing ornamented facade that gives directions to key areas of Amman while interacting with the existing exterior staircase.

 
website-front-entrance.jpg

Street level view that shows detail of way-finding system. Each geometry is colour coded to indicate a different zone of Amman. As the geometries step down in scale they increase in level of ornamentation leading to an increase of ornament surrounding thresholds. The geometries give directions while having a high ornamental quality.

 
website-inside-render.jpg

Theatre Interior showing use of geometry at multiple scales between the inhabitable, the structural and the ornamental.

 
website-inside-render-volume.jpg

Theatre Interior

 
website-axo-1.jpg

Building Axonometric Section describing key spaces and how the geometries tessellate with the existing architecture.

 
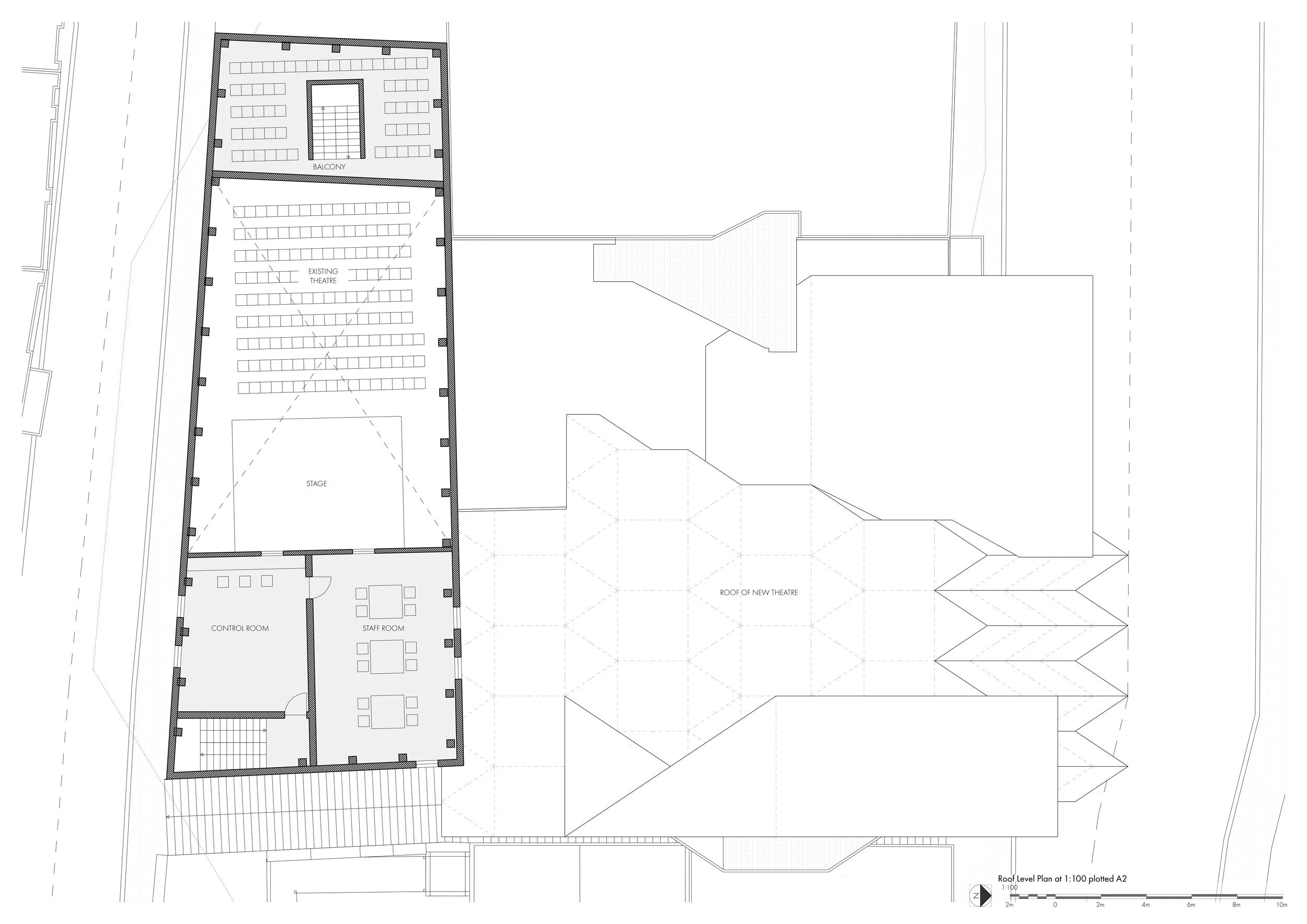
website-roof-plan.jpg
website-bar-plan.jpg
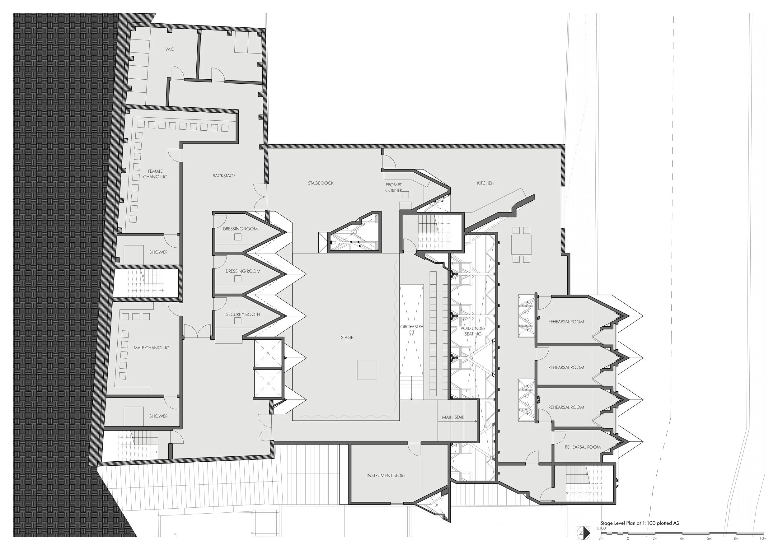
website-stage-plan.jpg
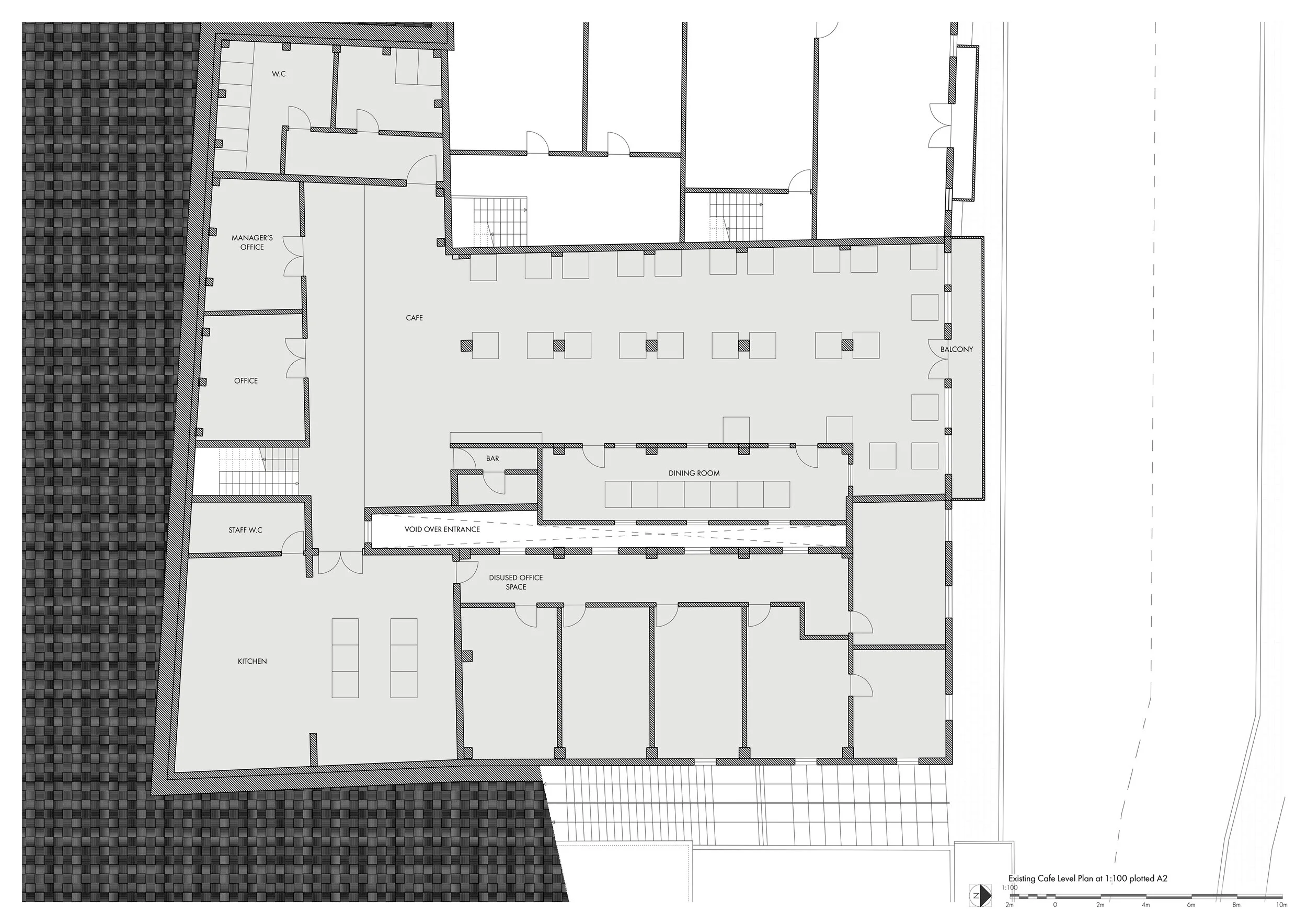
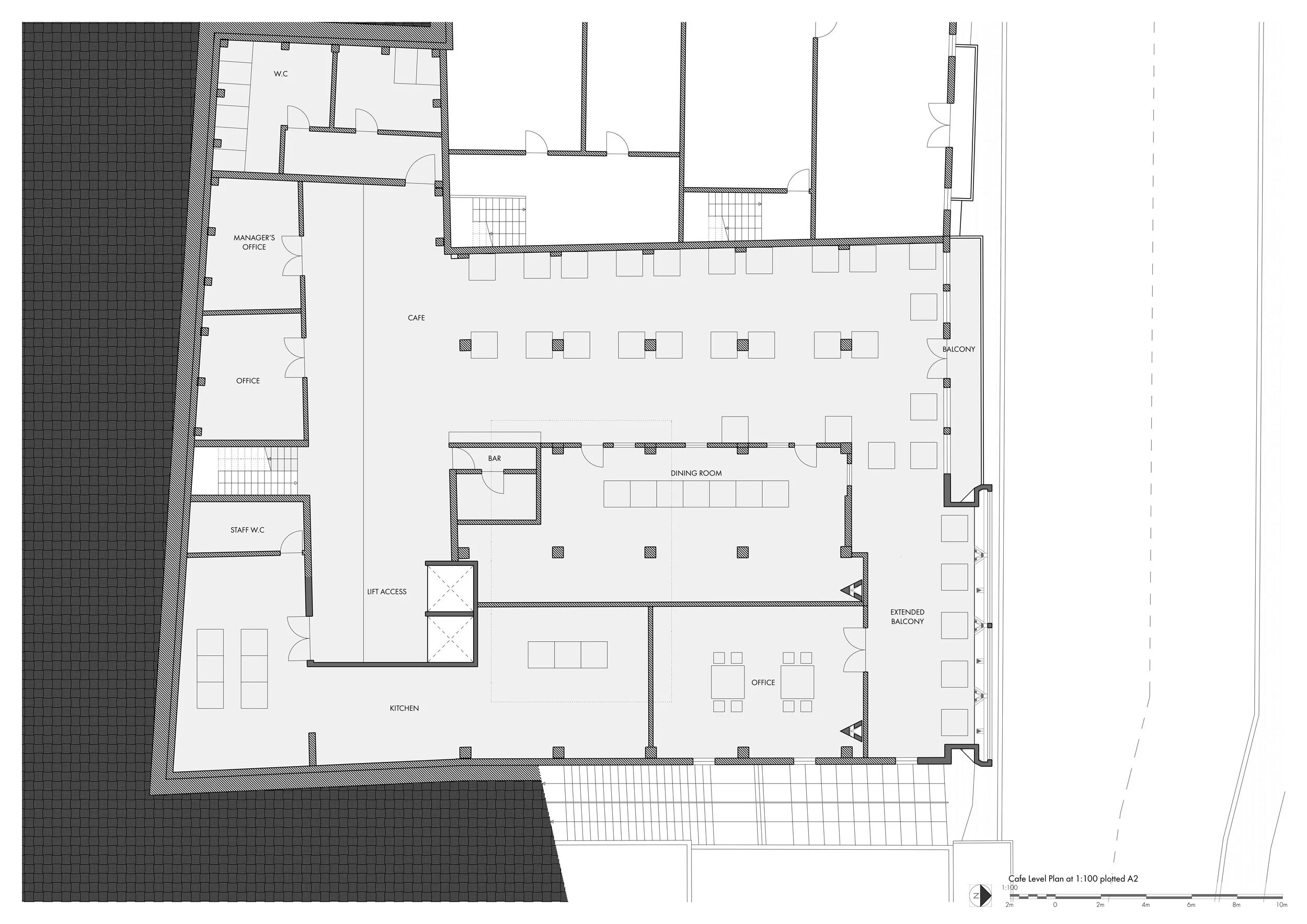
website-cafe-plan.jpg
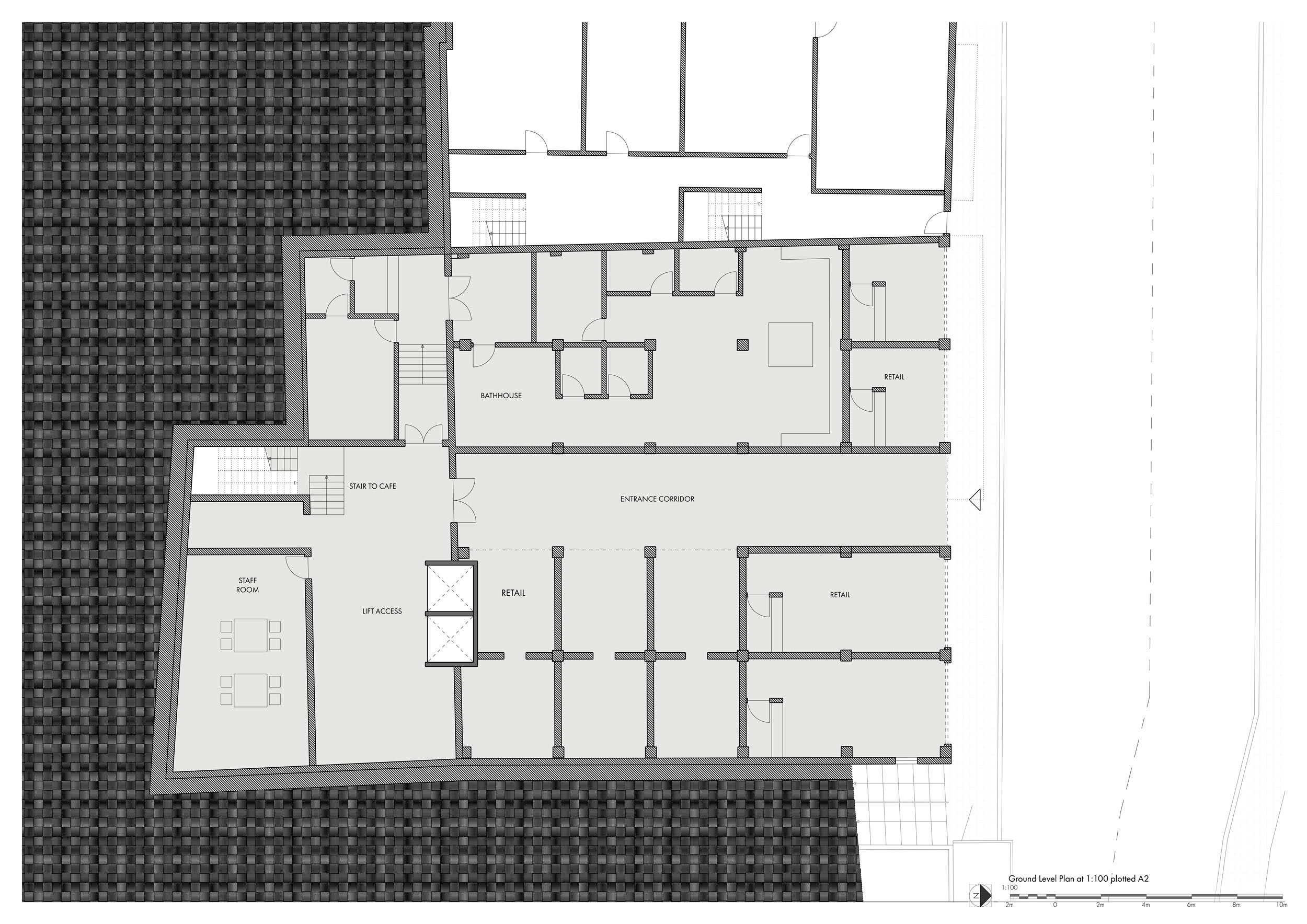
website-ground-level-plan.jpg
website-short-section.jpg
website-long-section.jpg
website-page-16.jpg
website-page-162.jpg
website-page-163.jpg
website-page-164.jpg
website-page-17.jpg
website-page-7.jpg
website-page-8.jpg
website-page-9.jpg
website-page-8.jpg
website-page-82.jpg
website-page-83.jpg
website-page-85.jpg
website-page-86.jpg
website-page-87.jpg
website-page-3.jpg
website-page-4.jpg
website-page-5.jpg
website-page-9.jpg
website-page-92.jpg
website-page-93.jpg
website-page-10.jpg
website-page-18.jpg
website-page-103.jpg
website-page-12.jpg
websit-page-11.jpg
websit-page-112.jpg
websit-page-113.jpg
website-page-14.jpg
website-page-142.jpg
website-page-143.jpg
website-page-15.jpg
website-page-2.jpg
website-page-1-.jpg
Previous
Previous

MArch Year 4 - COALESCENCE

Next
Next

Furniture Design